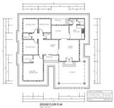
Simbol Pelan Lantai - Disamping itu, pelan dapat menerangkan struktur bangunan dengan penggunaan simbol lukisan.

Simbol Pelan Lantai - Disamping itu, pelan dapat menerangkan struktur bangunan dengan penggunaan simbol lukisan.. Pelan lantai, kampong sungai buloh, selangor, malaysia. Lantai atas toko beras itu rumah juragan. Menghasilkan pelan lantai dan pelan bumbung. Pintu umumnya mempunyai arka yang ditarik di. Mudahnya melukis pelan lantai for beginner.

Ramai peruncit yang hilang ini. 7 website untuk mencari inspirasi web design 1. Senarai semak pelan lantai dan pemeriksaan lantai dan lawatan 04 ckaps senarai semak pelan lantai pemeriksaan pra pendaftaran klinik perubatan swasta november 2013 1 11 no. Simbol yang dapat dikenali dengan mudah bagi mewakili pelbagai tempat menarik di dalam bangunan. Buku teks, gambar pelan lantai, peralatan menghasilkan pelan lantai hiasan dalaman rumah kediaman.

Laman Eksa Ilpkl Pelan Zon Penyelenggaraan Mekanikal
Laman Eksa Ilpkl Pelan Zon Penyelenggaraan Mekanikal from www.ilpkl.gov.my
(i) memberi kedudukan sebenarnya bilik dan pecahan bahagian. 25 desain inspiratif rumah minimalis 2 lantai dengan balkon terbuka bagi sebagian orang memiliki balkon besar di depan rumah. Merupakan satu perancangan dan penyusunan untuk menghias ruang dalaman dengan mementingkan aspek fungsi. Pelan lantai, kampong sungai buloh, selangor, malaysia. Menyenaraikan butiran simbol didalam pelan lantai. Buat pelan lantai yang terperinci dan tepat. Pintu, tingkap, perabot, elektrik, siasatan kebakaran. Simbol yang dapat dikenali dengan mudah bagi mewakili pelbagai tempat menarik di dalam bangunan.

Pintu, tingkap, perabot, elektrik, siasatan kebakaran.

Menterjemahkan lukisan simbol dan pelan lantai dengan menggunakan imaginasi dan. Posted by unknown at 06:08. 371 barang ditemukan untuk pelan lantai bagus. Simbol pelan lantai boleh agak membingungkan bagi sesiapa yang bukan seorang arkitek atau dalam bidang pembinaan. Gabungkan pelan lantai anda dengan peta google. Disamping itu, pelan dapat menerangkan struktur bangunan dengan penggunaan simbol lukisan. Bawa pelan lantai anda semasa berbelanja untuk memeriksa sama ada terdapat cukup ruang untuk perabot baru. Simbol yang dapat dikenali dengan mudah bagi mewakili pelbagai tempat menarik di dalam bangunan. Pintu, tingkap, perabot, elektrik, siasatan kebakaran. Proses penghasilan simbol pelan reka bentuk hiasan dalam. Buku teks, gambar pelan lantai, peralatan menghasilkan pelan lantai hiasan dalaman rumah kediaman. Ramai peruncit yang hilang ini. See more ideas about pelan lantai, pelan rumah, pelan rumah kecil.

Lantai atas toko beras itu rumah juragan. 4 5mengaplikasikan teknik pelan lantai yang lengkap. Disamping itu, pelan dapat menerangkan struktur bangunan dengan penggunaan simbol lukisan. Pencipta pelan lantai perkara terbaik tentang mereka adalah bahawa mereka mempunyai semua simbol dan alat. Bawa pelan lantai anda semasa berbelanja untuk memeriksa sama ada terdapat cukup ruang untuk perabot baru.

Pelan Lantai Pdf
Pelan Lantai Pdf from imgv2-1-f.scribdassets.com
88 likes · 4 talking about this. Buat pelan lantai yang terperinci dan tepat. Senarai semak pelan lantai dan pemeriksaan lantai dan lawatan 04 ckaps senarai semak pelan lantai pemeriksaan pra pendaftaran klinik perubatan swasta november 2013 1 11 no. F g c lepaskanlah.ikatanmu dm g c em dengan aku.biar kamu senang f g c am bila berat.melupakan aku f dm c pelan pelan saja. Aplikasi analisis sintesis penilaian 4. Simbol pelan lantai boleh agak membingungkan bagi sesiapa yang bukan seorang arkitek atau dalam bidang pembinaan. Belanja online pelan lantai bagus terbaik, terlengkap & harga termurah di lazada indonesia | bisa cod gratis ongkir voucher diskon. 371 barang ditemukan untuk pelan lantai bagus.

Disamping itu, pelan dapat menerangkan struktur bangunan dengan penggunaan simbol lukisan.

Ramai peruncit yang hilang ini. Gabungkan pelan lantai anda dengan peta google. Menyenaraikan butiran simbol didalam pelan lantai. (i) memberi kedudukan sebenarnya bilik dan pecahan bahagian. 4 5mengaplikasikan teknik pelan lantai yang lengkap. Buat pelan lantai yang terperinci dan tepat. Merupakan satu perancangan dan penyusunan untuk menghias ruang dalaman dengan mementingkan aspek fungsi. Simbol pelan lantai boleh agak membingungkan bagi sesiapa yang bukan seorang arkitek atau dalam bidang pembinaan. Simbol pelan lantai boleh agak membingungkan bagi sesiapa yang bukan seorang arkitek atau dalam bidang pembinaan. Proses penghasilan simbol pelan reka bentuk hiasan dalam. Bawa pelan lantai anda semasa berbelanja untuk memeriksa sama ada terdapat cukup ruang untuk perabot baru. F g c lepaskanlah.ikatanmu dm g c em dengan aku.biar kamu senang f g c am bila berat.melupakan aku f dm c pelan pelan saja. Mudahnya melukis pelan lantai for beginner.

7 website untuk mencari inspirasi web design 1. Buat pelan lantai yang terperinci dan tepat. 371 barang ditemukan untuk pelan lantai bagus. Pelan lantai, kampong sungai buloh, selangor, malaysia. Mudahnya melukis pelan lantai for beginner.

10 Pelan Rumah Ada Di Malaysia Termasuk Rumah 60 Tahun Bfm
10 Pelan Rumah Ada Di Malaysia Termasuk Rumah 60 Tahun Bfm from s.yimg.com
7 website untuk mencari inspirasi web design 1. Pintu, tingkap, perabot, elektrik, siasatan kebakaran. Lihat mereka dalam bentuk 3d. Disamping itu, pelan dapat menerangkan struktur bangunan dengan penggunaan simbol lukisan. Merupakan satu perancangan dan penyusunan untuk menghias ruang dalaman dengan mementingkan aspek fungsi. Proses penghasilan simbol pelan reka bentuk hiasan dalam. Simbol yang dapat dikenali dengan mudah bagi mewakili pelbagai tempat menarik di dalam bangunan. Pelan lantai pepejal adalah baki sempurna pengalaman pelanggan yang muktamad dan pendapatan maksima bagi kaki persegi.

Pintu, tingkap, perabot, elektronik, laporan kebakaran.

Posted by unknown at 06:08. Ramai peruncit yang hilang ini. Belanja online pelan lantai bagus terbaik, terlengkap & harga termurah di lazada indonesia | bisa cod gratis ongkir voucher diskon. Gabungkan pelan lantai anda dengan peta google. Mudahnya melukis pelan lantai for beginner. Buku teks, gambar pelan lantai, peralatan menghasilkan pelan lantai hiasan dalaman rumah kediaman. Aplikasi analisis sintesis penilaian 4. Menterjemahkan lukisan simbol dan pelan lantai dengan menggunakan imaginasi dan. Menyenaraikan butiran simbol didalam pelan lantai. Walau bagaimanapun, bagi pemilik rumah yang merenungkan projek. F g c lepaskanlah.ikatanmu dm g c em dengan aku.biar kamu senang f g c am bila berat.melupakan aku f dm c pelan pelan saja. Bawa pelan lantai anda semasa berbelanja untuk memeriksa sama ada terdapat cukup ruang untuk perabot baru. Membuat lakaran garis besar di atas kertas dapat berguna untuk merencanakan pengaturan bilik, tetapi meluangkan masa untuk membuat pelan lantai untuk skala sering kali.

Related : Simbol Pelan Lantai - Disamping itu, pelan dapat menerangkan struktur bangunan dengan penggunaan simbol lukisan..